軽費老人ホーム 海老津園

「海老津園」は、昭和58年5月にオープン。40年以上におよぶ実績と経験をもとに、安心、安全、信頼される軽費老人ホームです。
自然に恵まれた高台に位置し、澄んだ空気と優しい日差しあふれる環境は健康的で快適な生活をお約束します。
また低料金体制、自由で規則にとらわれない個性豊かな運営で個性豊かな生活が誰にでも楽しめることを目指してきました。これからの人生を素晴らしい環境の中で少しでも長く過ごして頂けるよう全スタッフが真心をこめてお手伝いせて頂きます。
海老津園概要・入居条件など
![]()
- 軽費老人ホーム(A型)・・・厚生省及び福岡県許可の公的許可施設
- 60歳以上であればどなたでも入居可
- 入居一時金は一切不要
- 全国どこからでも入居可(入居申込手続きは直接当施設で出来ます)
- 外出、外泊、面会は自由にできます
- 介護認定者の入居可能
- 介護保険の在宅サービスが受けれます
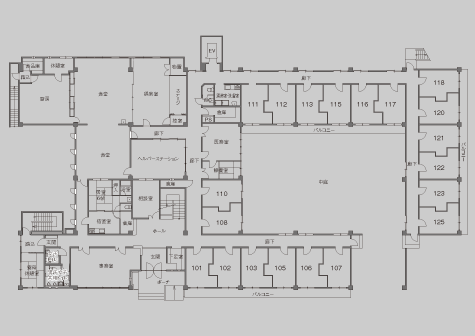
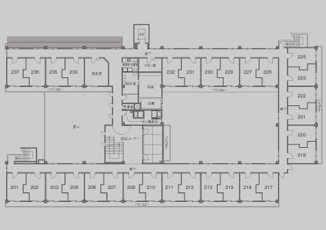
施設内マップ
![]()
陽光溢れる中庭を建物が囲み、どこからも目配りができる安心、安全な配棟設計。
プライバシーとコミュニケーションを両立した居室フロア。


1F
2F
■施設概要
- 建物構造:鉄筋コンクリート2階建て
- 敷地面積:5,696㎡
- 延床面積:1,637.02㎡
- 居 室:全室完全個室(冷暖房完備)
- 利用定員:50名
室内間取り
![]()
全室完全個室のプライバシーと居住性の高い部屋となっています。
■基本設備
- トイレ、洗面所、押入、ベランダ付き
- 照明、コンセント、金庫、冷暖房設備完備
居室平面図
サービス内容
![]()
利用料金には次のようなサービスが含まれます。
- 専属栄養士による献立(1日3食)
- 買い物・通院の送迎サービス
- 医師、看護師による健康管理サービス
- スタッフによる日常生活支援
海老津園での生活風景
![]()
■サークル活動&ミニイベント
海老津園には、脳トレ、工作、美顔マッサージ、腸活体操などのサークル活動があります。
また、ミニイベントとしてカラオケ、ネイルサロン、動画鑑賞が開催されています。
■年間行事
入居者のコミュニケーションを図る目的で様々な催しが開催されています。
※日程・作業内容は変更になることがあります。
| 1月 | 2月 | 3月 | 4月 | 5月 | 6月 | 7月 | 8月 | 9月 | 10月 | 11月 | 12月 |
|---|---|---|---|---|---|---|---|---|---|---|---|
| 初詣・新年祝賀会・どんと焼 | 節分(豆まき)・郷土料理 | ひな祭り・春祭り ・バスハイク |
春の収穫祭・運動会 | 日帰り旅行・郷土料理 | ラブアース | 七夕祭り | 郷土料理 | 敬老会 | 秋祭り・バスハイク | みかん狩り・郷土料理 | もちつき・クリスマス会 |






